MANUFATTI MARCATI CE IN CONFORMITÀ ALLA NORMATIVA UNI EN 15258:2009 Sistema 2+ Certificato N. 1305-CPR-0878
I muri prefabbricati in calcestruzzo sono impiegati per contenere terreni, delimitare scarpate, rampe o aree di riempimento in ambito stradale, ferroviario, industriale e residenziale. Offrono una soluzione rapida e sicura in alternativa ai getti in opera.
I muri di sostegno prefabbricati sono posati su una platea di sottofondazione in calcestruzzo di spessore variabile, preventivamente gettata in opera, e successivamente ancorati mediante il getto della fondazione. I muri prefabbricati semplificano le fasi di cantiere, riducono i tempi di installazione e garantiscono precisione geometrica e finiture costanti.
Progettati in conformità alle attuali norme vigenti, i muri prefabbricati sono realizzati con armature calcolate per sopportare spinte del terreno, carichi accidentali e condizioni ambientali critiche. Disponibili anche con finiture estetiche realizzate personalizzate.
0
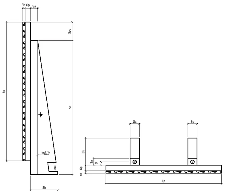
Paramento del muro di sostegno prefabbricato, costituito da una parete verticale (o inclinata) di altezza variabile e da due costole di irrigidimento, sotto le quali si evidenziano le armature fuoriuscenti da inglobare nel getto della fondazione.
1
Le fondazioni per muri di sostegno sono elementi in cemento armato costituiti da una gabbia di armatura inglobata all’interno di pareti in calcestruzzo, che fungono da cassero. Le dimensioni geometriche e le aree dell'acciaio sono dettate dai calcoli statici redatti in ragione dei carichi agenti sulla struttura e delle pressioni ammissibili sul terreno.
2
Le lastre di rivestimento prefabbricate rappresentano una soluzione versatile e funzionale per migliorare l'estetica di opere di sostegno, come berlinesi o palificate di grandi dimensioni. Sono dotate di armatura a traliccio elettrosaldato per unire idoneamente il pannello con la struttura retrostante.
0
Paramento del muro di sostegno prefabbricato, costituito da una parete verticale (o inclinata) di altezza variabile e da due costole di irrigidimento, sotto le quali si evidenziano le armature fuoriuscenti da inglobare nel getto della fondazione.
MANUFATTI MARCATI CE IN CONFORMITÀ ALLA NORMATIVA UNI EN 15258:2009 Sistema 2+ Certificato N. 1305-CPR-0878.
Altezza 2000mm a 13000mm
| CARATTERISTICHE GEOMETRICHE | CARAT. FISICHE | |||||||||||
| Hp [cm] |
Lp [cm] |
Sc [cm] |
hc [cm] |
Incl. % | Sa [cm] |
Sp [cm] |
Sr [cm] |
Sb [cm] |
Spc [cm] |
D [cm] |
Pero Kg (faccia vista/rivestitot) |
|
| Min. | 100 | 149/250 | 20 | 90 | 15 | 15 | 12 | 0/5 | 28.5 | 40 | 7.5 | 950/1200 |
| Max. | 1300 | 249/250 | 30 | 1300 | 15 | 15 | 12 | 0/5 | 210 | 120 | 7.5 | 31690/34940 |
I muri di sostegno prefabbricati possono essere forniti con finitura facciavista oppure con rivestimento estetico in pietrame naturale o artificiale, per un’integrazione più armoniosa nel contesto ambientale.
Scarica qui la voce di capitolato in formato PDF.
I muri di sostegno prefabbricati LP uniscono resistenza strutturale, estetica e rapidità di posa, rappresentando una soluzione perfetta per opere sicure, durevoli e altamente personalizzabili.
ContattaciScarica qui la voce di capitolato in formato PDF.
Hai un progetto da realizzare? Il nostro ufficio tecnico è a tua disposizione per offrirti assistenza, consulenza strutturale e preventivi su misura.
1
Le fondazioni per muri di sostegno sono elementi in cemento armato costituiti da una gabbia di armatura inglobata all’interno di pareti in calcestruzzo, che fungono da cassero. Le dimensioni geometriche e le aree dell'acciaio sono dettate dai calcoli statici redatti in ragione dei carichi agenti sulla struttura e delle pressioni ammissibili sul terreno.
MANUFATTI MARCATI CE IN CONFORMITÀ ALLA NORMATIVA UNI EN 15258:2009 Sistema 2+ Certificato N. 1305-CPR-0878.
La fondazione prefabbricata può essere prodotta in diverse dimensioni, per soddisfare le più severe condizioni ed esigenze progettuali e strutturali.
Hai un progetto da realizzare? Il nostro ufficio tecnico è a tua disposizione per offrirti assistenza, consulenza strutturale e preventivi su misura.
2
Le lastre di rivestimento prefabbricate rappresentano una soluzione versatile e funzionale per migliorare l'estetica di opere di sostegno, come berlinesi o palificate di grandi dimensioni. Sono dotate di armatura a traliccio elettrosaldato per unire idoneamente il pannello con la struttura retrostante.
MANUFATTI MARCATI CE IN CONFORMITÀ ALLA NORMATIVA UNI EN 15258:2009 Sistema 2+ Certificato N. 1305-CPR-0878.
Le lastre rivestite possono essere prodotte nelle seguenti dimensioni:
Base da 2000mm a 13000mm
Le lastre di rivestimento possono essere fornite con finitura facciavista o con rivestimento in pietrame naturale o artificiale mediante impiego di matrici, per diminuire l’impatto ambientale dei singoli elementi.
Hai un progetto da realizzare? Il nostro ufficio tecnico è a tua disposizione per offrirti assistenza, consulenza strutturale e preventivi su misura.
I muri prefabbricati LP uniscono resistenza strutturale, estetica e rapidità di posa. La soluzione perfetta per opere sicure, durevoli e altamente personalizzabili.
Contattaci
Hai un progetto da realizzare? Il nostro ufficio tecnico è a tua disposizione per offrirti assistenza, consulenza strutturale e preventivi su misura.
“PREFABBRICATI LP SRL. IL PROGETTO HA PERMESSO L’ACQUISTO DI DUE NUOVI CARRELLI ELEVATORI. CUP 14508.17092020.172000037” "Misura 3.1.1 a 3 Aiuti al contrasto e contenimento dell'emergenza epidemiologica COVID 19 Fondo Investimenti finalizzato al miglioramento della produttività aziendale grazie al poteziamento del parco macchinari. Il progetto ha permesso l'acquisto di due nuovi carrelli elevatori."