Tutti gli scatolari prefabbricati LP sono progettati su calcolo strutturale, nel pieno rispetto delle normative vigenti (NTC 2018, Eurocodice 2, UNI EN 148442006+A1:2008). Le strutture vengono dimensionate considerando i carichi permanenti e accidentali, compresi quelli derivanti dal traffico veicolare pesante (carichi da ponte stradale secondo NTC 2018 - ex carichi di 1 categoria NTC2008) e, su richiesta, carichi ferroviari o portuali.
Lo scatolare prefabbricato è dotato di armatura metallica interna, studiata per garantire la massima sicurezza anche in condizioni di sovraccarico o in presenza di alti livelli di rinterro.
Lo stesso elemento può essere realizzato anche con aperture di varie forme e dimensioni in base a specifiche richieste con inserimento di opportuna armatura di rinforzo.
Gli scatolari in calcestruzzo possono essere posizionati in orizzontale con base d'appoggio larga o in verticale con base d’appoggio stretta, a seconda delle esigenze progettuali.
La posa avviene su una fondazione dimensionata ad hoc, secondo quanto previsto dal progetto esecutivo, e può includere anche interventi di impermeabilizzazione o trattamento delle superfici.È possibile installare varie tipologie di guarnizioni al fine di offrire vari livelli di prestazione sulla tenuta idraulica del giunto.
Gli scatolari prefabbricati in calcestruzzo armato rappresentano una soluzione versatile ed efficiente per realizzare opere infrastrutturali sotterranee, come: condotte idrauliche, sottoservizi, attraversamenti sotto rilevati stradali, ferroviari o arginali, ma in generale per tutti quei contesti in cui sia necessario garantire elevata resistenza ai carichi agenti sulla struttura e quindi alla sua durabilità nel tempo.
0
Questa è la versione più comune di scatolari prefabbricati, ideale per condotte idrauliche, sottopassi e attraversamenti stradali e ferroviari. La loro forma chiusa garantisce resistenza strutturale elevata e versatilità in diversi contesti progettuali.
1
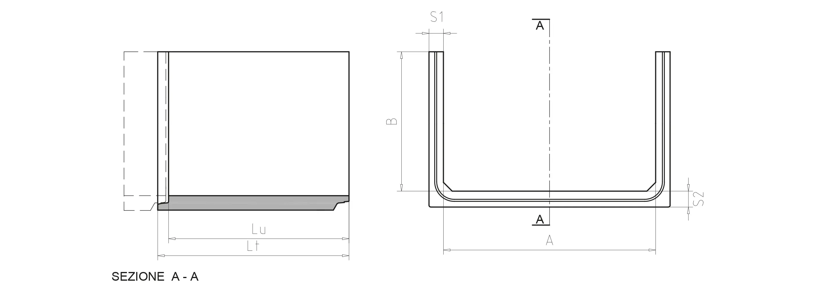
Gli scatolari prefabbricati con un lato superiore aperto sono pensati per canalizzazioni accessibili dall’alto, fossi di scolo o opere idrauliche ispezionabili. La struttura a 'U' li rende facili da ispezionare e manutenere, oltre che compatibili con coperture a piastra.
2
Progettati per infrastrutture complesse come sottopassi carrabili, canali di bonifica o condotte di grandi portate, questi scatolari prefabbricati sono prodotti su misura, personalizzando lunghezza, altezza e larghezza, offrendo prestazioni strutturali elevate.
3
Gli scatolari modulari offrono la massima flessibilità progettuale grazie alla loro componibilità. Sono ideali per realizzare condotte, sottopassi e canali anche su lunghi tratti, adattandosi facilmente alle esigenze di cantiere e facilitando trasporto e posa in opera.
4
Gli scatolari prefabbricati con calcestruzzo autocompattante (SCC) sono utilizzati per realizzare applicazioni di dimensioni di base superiori ai 6 metri e garantiscono una finitura superficiale superiore, l’assenza di vuoti e un’eccellente durabilità nel tempo.
5
Per tutte le categorie di scatolari prefabbricati è possibile dotare il manufatto di accessi tecnici integrati, perfetti per impianti di rete, collettori fognari o condotte per servizi dove sia necessaria la manutenzione periodica.
0
Questa è la versione più comune di scatolari prefabbricati, ideale per condotte idrauliche, sottopassi e attraversamenti stradali e ferroviari. La loro forma chiusa garantisce resistenza strutturale elevata e versatilità in diversi contesti progettuali.
Tutti i manufatti scatolari sono prodotti in conformità alla normativa UNI EN 14844:2006+A1:2008 Certificato N. 1305CPR-0878.
Base da 700mm a 1250mm
MANUFATTI MARCATI CE NORMATIVA UNI EN 14844:2006+A1:2008 SISTEMA 4
| CODICE AG | Guarnizioni | |||||||
| A mm | B mm | S1 mm | S2 mm | Lu mm | Lt mm | Peso Kg | Spessore mm | Download |
| 700 | 400 | 120 | 120 | 2000 | 2095 | 1700 | 22 | /file/Tabelle/scatolari/scatolare_standard/tabella_1/SchedaTecnicaScatolare70x40x200S-R.pdf |
| 1000 | 500 | 120 | 120 | 2000 | 2095 | 2100 | 22 | /file/Tabelle/scatolari/scatolare_standard/tabella_1/SchedaTecnicaScatolare100x50x200S-R.pdf |
| 1000 | 600 | 120 | 120 | 2000 | 2095 | 2200 | 22 | /file/Tabelle/scatolari/scatolare_standard/tabella_1/SchedaTecnicaScatolare100x60x200S-R.pdf |
| 1000 | 800 | 150 | 150 | 2000 | 2095 | 3200 | 22 | /file/Tabelle/scatolari/scatolare_standard/tabella_1/SchedaTecnicaScatolare100x80x200S-R.pdf |
| 1200 | 800 | 150 | 150 | 2000 | 2120 | 3360 | 22 | /file/Tabelle/scatolari/scatolare_standard/tabella_1/SchedaTecnicaScatolare120x80x200S-R.pdf |
| 1200 | 1000 | 150 | 150 | 2000 | 2120 | 3750 | 22 | /file/Tabelle/scatolari/scatolare_standard/tabella_1/SchedaTecnicaScatolare120x100x200S-R.pdf |
| 1250 | 1250 | 150 | 150 | 2000 | 2120 | 4300 | 22 | /file/Tabelle/scatolari/scatolare_standard/tabella_1/SchedaTecnicaScatolare125x125x200S-R.pdf |
Base da 1500mm a 5000mm
MANUFATTI MARCATI CE NORMATIVA UNI EN 14844:2006+A1:2008 SISTEMA 4
| CODICE AG | Guarnizioni | |||||||
| A mm | B mm | S1 mm | S2 mm | Lu mm | Lt mm | Peso Kg | Spessore mm | Download |
| 1500 | 1000 | 160 | 160 | 2000 | 2120 | 4480 | 22 | /file/Tabelle/scatolari/scatolare_standard/tabella_2/SchedaTecnicaScatolare150x100x200S-R.pdf |
| 1600 | 1000 | 160 | 160 | 2000 | 2120 | 4770 | 22 | /file/Tabelle/scatolari/scatolare_standard/tabella_2/SchedaTecnicaScatolare160x100x200S-R.pdf |
| 1800 | 1000 | 160 | 160 | 2000 | 2120 | 5250 | 22 | /file/Tabelle/scatolari/scatolare_standard/tabella_2/SchedaTecnicaScatolare180x100x200S-R.pdf |
| 1800 | 1200 | 160 | 160 | 2000 | 2120 | 5670 | 22 | /file/Tabelle/scatolari/scatolare_standard/tabella_2/SchedaTecnicaScatolare180x120x200S-R.pdf |
| 1600 | 1600 | 180 | 180 | 2000 | 2120 | 6470 | 22 | /file/Tabelle/scatolari/scatolare_standard/tabella_2/SchedaTecnicaScatolare160x160x200S-R.pdf |
| 1800 | 1800 | 180 | 180 | 2000 | 2120 | 7060 | 22 | /file/Tabelle/scatolari/scatolare_standard/tabella_2/SchedaTecnicaScatolare180x180x200S-R.pdf |
| 2100 | 1100 | 180 | 180 | 2000 | 2120 | 6450 | 22 | /file/Tabelle/scatolari/scatolare_standard/tabella_2/SchedaTecnicaScatolare210x110x200S-R.pdf |
| 2000 | 1500 | 180 | 180 | 1500 | 1620 | 5060 | 22 | /file/Tabelle/scatolari/scatolare_standard/tabella_2/SchedaTecnicaScatolare200x150x150S-R.pdf |
| 2000 | 1500 | 200 | 200 | 2000 | 2120 | 8000 | 22 | /file/Tabelle/scatolari/scatolare_standard/tabella_2/SchedaTecnicaScatolare200x150x200S-R-sp20.pdf |
| 2000 | 2000 | 180 | 180 | 2000 | 2120 | 8010 | 22 | /file/Tabelle/scatolari/scatolare_standard/tabella_2/SchedaTecnicaScatolare200x200x200S-R.pdf |
| 2200 | 1700 | 180 | 180 | 1000 | 1120 | 3910 | 22 | /file/Tabelle/scatolari/scatolare_standard/tabella_2/SchedaTecnicaScatolare220x170x100S-R.pdf |
| 2200 | 1700 | 180 | 180 | 2000 | 2120 | 7820 | 22 | /file/Tabelle/scatolari/scatolare_standard/tabella_2/SchedaTecnicaScatolare220x170x200S-R.pdf |
| 2400 | 2200 | 180 | 180 | 1750 | 1870 | 7365 | 22 | /file/Tabelle/scatolari/scatolare_standard/tabella_2/SchedaTecnicaScatolare240x220x175S-R.pdf |
| 2500 | 1250 | 180 | 180 | 1000 | 1120 | 3750 | 22 | /file/Tabelle/scatolari/scatolare_standard/tabella_2/SchedaTecnicaScatolare250x125x100S-R.pdf |
| 2500 | 1250 | 180 | 180 | 2000 | 2120 | 7550 | 22 | /file/Tabelle/scatolari/scatolare_standard/tabella_2/SchedaTecnicaScatolare250x125x200S-R.pdf |
| 2500 | 1500 | 180 | 180 | 2000 | 2120 | 7850 | 22 | /file/Tabelle/scatolari/scatolare_standard/tabella_2/SchedaTecnicaScatolare250x150x200S-R.pdf |
| 2500 | 2000 | 180 | 180 | 1750 | 1870 | 7680 | 22 | /file/Tabelle/scatolari/scatolare_standard/tabella_2/SchedaTecnicaScatolare250x200x175S-R.pdf |
| 2500 | 2100 | 180 | 180 | 2000 | 2120 | 9090 | 22 | /file/Tabelle/scatolari/scatolare_standard/tabella_2/SchedaTecnicaScatolare250x210x200S-R.pdf |
| 2500 | 2500 | 180 | 180 | 2000 | 2120 | 9800 | 22 | /file/Tabelle/scatolari/scatolare_standard/tabella_2/SchedaTecnicaScatolare250x250x200S-R-sp.18.pdf |
| 2500 | 2500 | 220 | 220 | 2000 | 2123 | 12100 | 22 | /file/Tabelle/scatolari/scatolare_standard/tabella_2/SchedaTecnicaScatolare250x250x200S-R-sp.22.pdf |
| 3000 | 1250 | 220 | 220 | 1100 | 1220 | 5780 | 22 | /file/Tabelle/scatolari/scatolare_standard/tabella_2/SchedaTecnicaScatolare300x125x110S-R.pdf |
| 3000 | 1500 | 220 | 220 | 1100 | 1220 | 5950 | 22 | /file/Tabelle/scatolari/scatolare_standard/tabella_2/SchedaTecnicaScatolare300x150x110S-R.pdf |
| 3000 | 1500 | 200 | 200 | 2000 | 2120 | 9800 | 22 | /file/Tabelle/scatolari/scatolare_standard/tabella_2/SchedaTecnicaScatolare300x150x110S-R.pdf |
| 3000 | 2000 | 220 | 220 | 1100 | 1220 | 6720 | 22 | /file/Tabelle/scatolari/scatolare_standard/tabella_2/SchedaTecnicaScatolare300x200x110S-R.pdf |
| 3000 | 2500 | 220 | 220 | 1100 | 1220 | 7240 | 22 | /file/Tabelle/scatolari/scatolare_standard/tabella_2/SchedaTecnicaScatolare300x250x110S-R.pdf |
| 3000 | 3000 | 200 | 200 | 2000 | 2120 | 13000 | 22 | /file/Tabelle/scatolari/scatolare_standard/tabella_2/SchedaTecnicaScatolare300x300x200S-R-sp.20.pdf |
| 3000 | 3000 | 220 | 220 | 1400 | 1520 | 10000 | 22 | /file/Tabelle/scatolari/scatolare_standard/tabella_2/SchedaTecnicaScatolare300x300x200S-R-sp.22.pdf |
| 3500 | 2000 | 220 | 220 | 1100 | 1220 | 7340 | 22 | /file/Tabelle/scatolari/scatolare_standard/tabella_2/SchedaTecnicaScatolare350x200x110S-R.pdf |
| 3600 | 2200 | 250 | 250 | 1100 | 1220 | 8660 | 22 | /file/Tabelle/scatolari/scatolare_standard/tabella_2/SchedaTecnicaScatolare360x220x110S-R.pdf |
| 3600 | 2200 | 250 | 250 | 2000 | 2120 | 15700 | 22 | /file/Tabelle/scatolari/scatolare_standard/tabella_2/SchedaTecnicaScatolare360x220x110S-R.pdf |
| 4000 | 2000 | 240 | 240 | 2000 | 2120 | 15200 | 22 | /Users/niko/Documents/DEV/LP//file/Tabelle/scatolari/scatolare_standard/tabella_2/SchedaTecnicaScatolare400x200x200S-R.pdf |
| 4000 | 2200 | 250 | 250 | 1100 | 1220 | 9400 | 22 | /file/Tabelle/scatolari/scatolare_standard/tabella_2/SchedaTecnicaScatolare400x220x110S-R.pdf |
| 4000 | 2200 | 250 | 250 | 1750 | 1870 | 14800 | 22 | /file/Tabelle/scatolari/scatolare_standard/tabella_2/SchedaTecnicaScatolare400x220x175S-R.pdf |
| 5000 | 2000 | 290 | 290 | 1400 | 1520 | 15000 | 24 | /file/Tabelle/scatolari/scatolare_standard/tabella_2/SchedaTecnicaScatolare500x200x140S-R.pdf |
Scarica qui la voce di capitolato in formato PDF.
Hai un progetto da realizzare? Il nostro ufficio tecnico è a tua disposizione per offrirti assistenza, consulenza strutturale e preventivi su misura.
1
Gli scatolari prefabbricati con un lato superiore aperto sono pensati per canalizzazioni accessibili dall’alto, fossi di scolo o opere idrauliche ispezionabili. La struttura a 'U' li rende facili da ispezionare e manutenere, oltre che compatibili con coperture a piastra.
Tutti i manufatti scatolari sono prodotti in conformità alla normativa UNI EN 14844:2006+A1:2008 Certificato N. 1305CPR-0878.
Base da 1.000mm a 6.000mm
Legenda:
sp. 180mm
sp. 200mm
sp. 250mm
sp. 300mm
CODICE AI
| Base [mm] | ||||||||||||||||||||||
| Altezza [mm] |
1000 | 1250 | 1500 | 2000 | 2250 | 2500 | 2750 | 3000 | 3250 | 3500 | 3750 | 4000 | 4250 | 4500 | 4750 | 5000 | 5250 | 5500 | 5750 | 6000 | Altezza [mm] |
|
| 1000 | yellow | yellow | yellow | yellow | yellow | yellow | yellow | yellow | green | green | green | green | green | green | green | blu | blu | blu | blu | purple | ||
| 1250 | yellow | yellow | yellow | yellow | yellow | yellow | yellow | yellow | green | green | green | green | green | green | green | blu | blu | blu | blu | purple | ||
| 1500 | yellow | yellow | yellow | yellow | yellow | yellow | yellow | yellow | green | green | green | green | green | green | green | blu | blu | blu | blu | purple | ||
| 1750 | yellow | yellow | yellow | yellow | yellow | yellow | yellow | yellow | green | green | ||||||||||||
| 2000 | green | green | green | green | green | green | green | green | ||||||||||||||
| 2250 | green | green | green | green | green | blu | ||||||||||||||||
| 2500 | green | green | green | green | green | blu | ||||||||||||||||
| 2750 | blu | blu | blu | blu | blu | blu | ||||||||||||||||
| 3000 | blu | blu | blu | blu | blu | purple | ||||||||||||||||
Per vedere le schede tecniche relative invia una mail a info@prefabbricatilp.it
Scarica qui la voce di capitolato in formato PDF.
Hai un progetto da realizzare? Il nostro ufficio tecnico è a tua disposizione per offrirti assistenza, consulenza strutturale e preventivi su misura.
2
Progettati per infrastrutture complesse come sottopassi carrabili, canali di bonifica o condotte di grandi portate, questi scatolari prefabbricati sono prodotti su misura, personalizzando lunghezza, altezza e larghezza, offrendo prestazioni strutturali elevate.
TUTTI I MANUFATTI SCATOLARI SONO PRODOTTI IN CONFORMITÀ ALLA NORMATIVA UNI EN 14844:2006+A1:2008 CERTIFICATO N. 1305CPR-0878.
Base da 3000mm a 6000mm
Legenda:
sp. 220 [mm]
sp. 250 [mm]
sp. 290 [mm]
sp. 300 [mm]
CODICE AG
| Base mm |
|||||||||||||||
| Altezza mm |
3000 | 3250 | 3500 | 3600 | 4000 | 4250 | 4500 | 4750 | 5000 | 5250 | 5500 | 5750 | 6000 | Altezza mm |
|
| 2500 | green | green | blu | blu | blu | blu | blu | yellow | purple | purple | purple | purple | |||
| 3000 | green | green | blu | blu | blu | blu | blu | yellow | purple | purple | purple | purple | |||
| 3250 | green | blu | green | blu | blu | yellow | |||||||||
| 3500 | green | blu | green | blu | blu | yellow | |||||||||
| 4000 | green | blu | blu | blu | |||||||||||
| 4250 | green | blu | |||||||||||||
Per vedere le schede tecniche relative invia una mail a info@prefabbricatilp.it
Scarica qui la voce di capitolato in formato PDF.
Hai un progetto da realizzare? Il nostro ufficio tecnico è a tua disposizione per offrirti assistenza, consulenza strutturale e preventivi su misura.
3
Gli scatolari modulari offrono la massima flessibilità progettuale grazie alla loro componibilità. Sono ideali per realizzare condotte, sottopassi e canali anche su lunghi tratti, adattandosi facilmente alle esigenze di cantiere e facilitando trasporto e posa in opera.
TUTTI I MANUFATTI SCATOLARI SONO PRODOTTI IN CONFORMITÀ ALLA NORMATIVA UNI EN 14844:2006+A1:2008 CERTIFICATO N. 1305CPR-0878.
Base da 2.000mm a 6.000mm
Legenda:
sp. 180mm - 200mm - 250mm
sp. 200mm - 250mm - 300mm
sp. 300mm
CODICE AG
| Base mm |
|||||||||||||||||||
| Altezza mm |
2000 | 2250 | 2500 | 2750 | 3000 | 3250 | 3500 | 3750 | 4000 | 4250 | 4500 | 4750 | 5000 | 5250 | 5500 | 5750 | 6000 | Altezza mm |
|
| 1000 | red | red | red | red | red | red | yellow | yellow | yellow | yellow | yellow | yellow | green | green | green | green | green | ||
| 1250 | red | red | red | red | red | red | yellow | yellow | yellow | yellow | yellow | yellow | green | green | green | green | green | ||
| 1500 | red | red | red | red | red | red | yellow | yellow | yellow | yellow | yellow | yellow | green | green | green | green | green | ||
| 1750 | red | red | red | red | red | red | yellow | yellow | yellow | yellow | yellow | yellow | green | green | green | green | green | ||
| 2000 | red | red | red | red | red | red | yellow | yellow | yellow | yellow | yellow | yellow | green | green | green | green | green | ||
| 2250 | red | red | red | red | red | red | yellow | yellow | yellow | yellow | yellow | yellow | green | green | green | green | green | ||
| 2500 | red | red | red | red | red | red | yellow | yellow | yellow | yellow | yellow | yellow | green | green | green | green | green | ||
| 2750 | red | red | red | red | red | red | yellow | yellow | yellow | yellow | yellow | yellow | green | green | green | green | green | ||
| 3000 | red | red | red | red | red | red | yellow | yellow | yellow | yellow | yellow | yellow | green | green | green | green | green | ||
| 3250 | red | red | red | red | red | red | yellow | ||||||||||||
| 3500 | red | red | red | red | red | red | yellow | ||||||||||||
Per vedere le schede tecniche relative invia una mail a info@prefabbricatilp.it
Hai un progetto da realizzare? Il nostro ufficio tecnico è a tua disposizione per offrirti assistenza, consulenza strutturale e preventivi su misura.
4
Gli scatolari prefabbricati con calcestruzzo autocompattante (SCC) sono utilizzati per realizzare applicazioni di dimensioni di base superiori ai 6 metri e garantiscono una finitura superficiale superiore, l’assenza di vuoti e un’eccellente durabilità nel tempo.
TUTTI I MANUFATTI SCATOLARI SONO PRODOTTI IN CONFORMITÀ ALLA NORMATIVA UNI EN 14844:2006+A1:2008 CERTIFICATO N. 1305CPR-0878.
Base da 6500 mm a 10000mm
Legenda:
sp. 300 - 350 [mm]
sp. 400 - 450 [mm]
sp. 500 [mm]
CODICE AG
| Base mm |
||||||||||
| Altezza mm |
6500 | 7000 | 7500 | 8000 | 8500 | 9000 | 9500 | 10000 | Altezza mm |
|
| 2000 | red | yellow | yellow | yellow | yellow | yellow | green | green | ||
| 2250 | red | yellow | yellow | yellow | yellow | yellow | green | green | ||
| 2500 | red | yellow | yellow | yellow | yellow | yellow | green | green | ||
| 2750 | red | yellow | yellow | yellow | yellow | yellow | green | green | ||
| 3000 | red | yellow | yellow | yellow | yellow | yellow | green | green | ||
| 3250 | red | yellow | yellow | yellow | yellow | yellow | green | green | ||
| 3500 | red | yellow | yellow | yellow | yellow | yellow | green | green | ||
Per vedere le schede tecniche relative invia una mail a info@prefabbricatilp.it
Scarica qui la voce di capitolato in formato PDF.
Hai un progetto da realizzare? Il nostro ufficio tecnico è a tua disposizione per offrirti assistenza, consulenza strutturale e preventivi su misura.
5
Per tutte le categorie di scatolari prefabbricati è possibile dotare il manufatto di accessi tecnici integrati, perfetti per impianti di rete, collettori fognari o condotte per servizi dove sia necessaria la manutenzione periodica.
TUTTI I MANUFATTI SCATOLARI SONO PRODOTTI IN CONFORMITÀ ALLA NORMATIVA UNI EN 14844:2006+A1:2008 CERTIFICATO N. 1305CPR-0878.
Base da 700mm a 1250mm
MANUFATTI MARCATI CE IN CONFORMITÀ ALLA NORMATIVA UNI EN 14844:2006+A1:2008 SISTEMA 4
| CODICE AH | Guarnizioni | |||||||
| A mm | B mm | S1 mm | S2 mm | Lu mm | Lt mm | Peso Kg | Spessore mm | Download |
| 700 | 400 | 120 | 120 | 2000 | 2095 | 1700 | 22 | /file/Tabelle/scatolari/scatolare_ispezione/tabella_1/SchedaTecnicaScatolare70x40x200S-R+VI.pdf |
| 1000 | 500 | 120 | 120 | 2000 | 2095 | 2100 | 22 | /file/Tabelle/scatolari/scatolare_ispezione/tabella_1/SchedaTecnicaScatolare100x50x200S-R+VI.pdf |
| 1000 | 600 | 120 | 120 | 2000 | 2095 | 2200 | 22 | /file/Tabelle/scatolari/scatolare_ispezione/tabella_1/SchedaTecnicaScatolare100x60x200S-R+VI.pdf |
| 1000 | 800 | 150 | 150 | 2000 | 2095 | 3200 | 22 | /file/Tabelle/scatolari/scatolare_ispezione/tabella_1/SchedaTecnicaScatolare100x80x200S-R+VI.pdf |
| 1200 | 800 | 150 | 150 | 2000 | 2120 | 3360 | 22 | /file/Tabelle/scatolari/scatolare_ispezione/tabella_1/SchedaTecnicaScatolare120x80x200S-R+VI.pdf |
| 1200 | 1000 | 150 | 150 | 2000 | 2120 | 3750 | 22 | /file/Tabelle/scatolari/scatolare_ispezione/tabella_1/SchedaTecnicaScatolare120x100x200S-R+VI.pdf |
| 1250 | 1250 | 150 | 150 | 2000 | 2120 | 4300 | 22 | /file/Tabelle/scatolari/scatolare_ispezione/tabella_1/SchedaTecnicaScatolare125x125x200S-R+VI.pdf |
Base da 1500mm a 6000mm
MANUFATTI MARCATI CE IN CONFORMITÀ ALLA NORMATIVA UNI EN 14844:2006+A1:2008 SISTEMA 2 + CERT. N° 1305-CPR-0878
| CODICE AH | Guarnizioni | |||||||
| A mm | B mm | S1 mm | S2 mm | Lu mm | Lt mm | Peso Kg | Spessore mm | Download |
| 1500 | 1000 | 160 | 160 | 2000 | 2120 | 4480 | 22 | /file/Tabelle/scatolari/scatolare_ispezione/tabella_2/SchedaTecnicaScatolare150x100x200S-R+ VI.pdf |
| 1600 | 1000 | 160 | 160 | 2000 | 2120 | 4770 | 22 | /file/Tabelle/scatolari/scatolare_ispezione/tabella_2/SchedaTecnicaScatolare160x100x200S-R+VI.pdf |
| 1800 | 1000 | 160 | 160 | 2000 | 2120 | 5250 | 22 | /file/Tabelle/scatolari/scatolare_ispezione/tabella_2/SchedaTecnicaScatolare180x100x200S-R+VI.pdf |
| 1800 | 1200 | 160 | 160 | 2000 | 2120 | 5670 | 22 | /file/Tabelle/scatolari/scatolare_ispezione/tabella_2/SchedaTecnicaScatolare180x120x200S-R+VI.pdf |
| 1600 | 1600 | 180 | 180 | 2000 | 2120 | 6470 | 22 | /file/Tabelle/scatolari/scatolare_ispezione/tabella_2/SchedaTecnicaScatolare160x160x200S-R+VI.pdf |
| 1800 | 1800 | 180 | 180 | 2000 | 2120 | 7060 | 22 | /file/Tabelle/scatolari/scatolare_ispezione/tabella_2/SchedaTecnicaScatolare180x180x200S-R+VI.pdf |
| 2100 | 1100 | 180 | 180 | 2000 | 2120 | 6450 | 22 | /file/Tabelle/scatolari/scatolare_ispezione/tabella_2/SchedaTecnicaScatolare210x110x200S-R+VI.pdf |
| 2000 | 1500 | 180 | 180 | 1500 | 1620 | 5060 | 22 | /file/Tabelle/scatolari/scatolare_ispezione/tabella_2/SchedaTecnicaScatolare200x150x150S-R+VI.pdf |
| 2000 | 1500 | 200 | 200 | 2000 | 2120 | 8000 | 22 | /file/Tabelle/scatolari/scatolare_ispezione/tabella_2/SchedaTecnicaScatolare200x150x200S-Rsp20+VI.pdf |
| 2000 | 2000 | 180 | 180 | 2000 | 2120 | 8010 | 22 | /file/Tabelle/scatolari/scatolare_ispezione/tabella_2/SchedaTecnicaScatolare200x200x200S-R+VI.pdf |
| 2200 | 1700 | 180 | 180 | 1000 | 1120 | 3910 | 22 | /file/Tabelle/scatolari/scatolare_ispezione/tabella_2/SchedaTecnicaScatolare220x170x100S-R+VI.pdf |
| 2200 | 1700 | 180 | 180 | 2000 | 2120 | 7820 | 22 | /file/Tabelle/scatolari/scatolare_ispezione/tabella_2/SchedaTecnicaScatolare220x170x200S-R+ VI.pdf |
| 2400 | 2200 | 180 | 180 | 1750 | 1870 | 7365 | 22 | /file/Tabelle/scatolari/scatolare_ispezione/tabella_2/SchedaTecnicaScatolare240x220x175S-R+VI.pdf |
| 2500 | 1250 | 180 | 180 | 1000 | 1120 | 3750 | 22 | /file/Tabelle/scatolari/scatolare_ispezione/tabella_2/SchedaTecnicaScatolare250x125x100S-R+VI.pdf |
| 2500 | 1250 | 180 | 180 | 2000 | 2120 | 7550 | 22 | /file/Tabelle/scatolari/scatolare_ispezione/tabella_2/SchedaTecnicaScatolare250x125x200S-R+VI.pdf |
| 2500 | 1500 | 180 | 180 | 2000 | 2120 | 7850 | 22 | /file/Tabelle/scatolari/scatolare_ispezione/tabella_2/SchedaTecnicaScatolare250x150x200S-R+VI.pdf |
| 2500 | 2000 | 180 | 180 | 1750 | 1870 | 7680 | 22 | /file/Tabelle/scatolari/scatolare_ispezione/tabella_2/SchedaTecnicaScatolare250x200x175S-R+VI.pdf |
| 2500 | 2100 | 180 | 180 | 2000 | 2120 | 9090 | 22 | /file/Tabelle/scatolari/scatolare_ispezione/tabella_2/SchedaTecnicaScatolare250x210x200S-R+VI.pdf |
| 2500 | 2500 | 180 | 180 | 2000 | 2120 | 9800 | 22 | /file/Tabelle/scatolari/scatolare_ispezione/tabella_2/SchedaTecnicaScatolare250x250x200S-R+VI.pdf |
| 2500 | 2500 | 220 | 220 | 2000 | 2123 | 12100 | 22 | /file/Tabelle/scatolari/scatolare_ispezione/tabella_2/SchedaTecnicaScatolare250x250x200S-Rsp.22+VI.pdf |
| 3000 | 1250 | 220 | 220 | 1100 | 1220 | 5780 | 22 | /file/Tabelle/scatolari/scatolare_ispezione/tabella_2/SchedaTecnicaScatolare300x125x110S-R+VI.pdf |
| 3000 | 1500 | 220 | 220 | 1100 | 1220 | 5950 | 22 | /file/Tabelle/scatolari/scatolare_ispezione/tabella_2/SchedaTecnicaScatolare300x150x110S-R+VI.pdf |
| 3000 | 1500 | 200 | 200 | 2000 | 2120 | 9800 | 22 | /file/Tabelle/scatolari/scatolare_ispezione/tabella_2/SchedaTecnicaScatolare300x150x200S-R+VI.pdf |
| 3000 | 2000 | 220 | 220 | 1100 | 1220 | 6720 | 22 | /file/Tabelle/scatolari/scatolare_ispezione/tabella_2/SchedaTecnicaScatolare300x200x110S-R+VI.pdf |
| 3000 | 2500 | 220 | 220 | 1100 | 1220 | 7240 | 22 | /file/Tabelle/scatolari/scatolare_ispezione/tabella_2/SchedaTecnicaScatolare300x250x110S-R+VI.pdf |
| 3000 | 3000 | 200 | 200 | 2000 | 2120 | 13000 | 22 | /file/Tabelle/scatolari/scatolare_ispezione/tabella_2/SchedaTecnicaScatolare300x300x200S-R+VI.pdf |
| 3000 | 3000 | 220 | 220 | 1400 | 1520 | 10000 | 22 | /file/Tabelle/scatolari/scatolare_ispezione/tabella_2/SchedaTecnicaScatolare300x300x200S-Rsp.22+VI.pdf |
| 3500 | 2000 | 220 | 220 | 1100 | 1220 | 7340 | 22 | /file/Tabelle/scatolari/scatolare_ispezione/tabella_2/SchedaTecnicaScatolare350x200x110S-R+VI.pdf |
| 3600 | 2200 | 250 | 250 | 1100 | 1220 | 8660 | 22 | /file/Tabelle/scatolari/scatolare_ispezione/tabella_2/SchedaTecnicaScatolare360x220x110S-R+VI.pdf |
| 3600 | 2200 | 250 | 250 | 2000 | 2120 | 15700 | 22 | /file/Tabelle/scatolari/scatolare_ispezione/tabella_2/SchedaTecnicaScatolare360x220x200S-R+VI.pdf |
| 4000 | 2000 | 240 | 240 | 2000 | 2120 | 15200 | 22 | /file/Tabelle/scatolari/scatolare_ispezione/tabella_2/SchedaTecnicaScatolare400x200x200S-R+VI.pdf |
| 4000 | 2200 | 250 | 250 | 1100 | 1220 | 9400 | 22 | /file/Tabelle/scatolari/scatolare_ispezione/tabella_2/SchedaTecnicaScatolare400x220x110S-R+VI.pdf |
| 4000 | 2200 | 250 | 250 | 1750 | 1870 | 14800 | 22 | /file/Tabelle/scatolari/scatolare_ispezione/tabella_2/SchedaTecnicaScatolare400x220x175S-R+VI.pdf |
| 5000 | 2000 | 290 | 290 | 1400 | 1520 | 15000 | 24 | /file/Tabelle/scatolari/scatolare_ispezione/tabella_2/SchedaTecnicaScatolare500x200x140S-R+VI.pdf |
Quando la quota tra il piano di scorrimento e il piano strada non consente l'utilizzo degli elementi di sopralzo, sarà sufficiente il solo fondo pozzetto (cameretta), adeguandone l’altezza alle esigenze del caso.
Per questa soluzione, si richiede il solo elemento di chiusura (soletta piana), idoneo a sopportare carichi da ponte stradale. Esso è realizzato con incastro antisbandamento e con apposito alloggiamento per l’inserimento degli anelli di spessore.L’eventuale raggiungimento della quota esatta per il posizionamento del chiusino in ghisa si ottiene con la sovrapposizione degli anelli a spessore.
Hai un progetto da realizzare? Il nostro ufficio tecnico è a tua disposizione per offrirti assistenza, consulenza strutturale e preventivi su misura.
Per applicazioni particolarmente esposte ad agenti chimici aggressivi, come reflui industriali o fanghi, proponiamo scatolari prefabbricati rivestiti con liner in HDPE o materiali anticorrosivi. Questo tipo di rivestimento interno protegge il calcestruzzo da fenomeni di degrado, prolungando significativamente la durata utile dell’opera.
Scopri prodotto
Scegliere uno scatolare prefabbricato LP significa investire in una soluzione efficiente, affidabile, personalizzabile e soprattutto duratura nel tempo.
Contattaci
Hai un progetto da realizzare? Il nostro ufficio tecnico è a tua disposizione per offrirti assistenza, consulenza strutturale e preventivi su misura.
“PREFABBRICATI LP SRL. IL PROGETTO HA PERMESSO L’ACQUISTO DI DUE NUOVI CARRELLI ELEVATORI. CUP 14508.17092020.172000037” "Misura 3.1.1 a 3 Aiuti al contrasto e contenimento dell'emergenza epidemiologica COVID 19 Fondo Investimenti finalizzato al miglioramento della produttività aziendale grazie al poteziamento del parco macchinari. Il progetto ha permesso l'acquisto di due nuovi carrelli elevatori."