MANUFATTI MARCATI CE IN CONFORMITÀ ALLA NORMATIVA UNI EN 1916:2004
Realizzati in calcestruzzo vibrocompresso, con o senza armatura, i tubi prefabbricati rispettano le norme UNI EN 1916 e NTC 2018. Sono progettati per resistere a carichi stradali, spinte del terreno e condizioni idrauliche gravose. Sono inoltre disponibili con relazioni di calcolo e supporto tecnico.
Posati su letto stabilizzato, i tubi autoportanti con base piana garantiscono tenuta e allineamento grazie alla precisione dimensionale e alla modularità. Grazie alla base di appoggio e alle giunzioni sigillabili tramite guarnizioni, la posa risulta più rapida rispetto ai classici tubi circolari.
I tubi in calcestruzzo sono utilizzati per realizzare condotte fognarie, idriche e drenanti in ambito urbano, stradale e industriale. Adatti sia per acque reflue che meteoriche, questi manufatti si prestano a installazioni interrate, attraversamenti stradali e opere infrastrutturali complesse.
0
I tubi autoportanti sono progettati per sostenere autonomamente i carichi del terreno, della massicciata stradale e dai carichi da ponte stradale secondo NTC 2018, senza necessità di un rivestimento o contenimento ulteriore esterno.
1
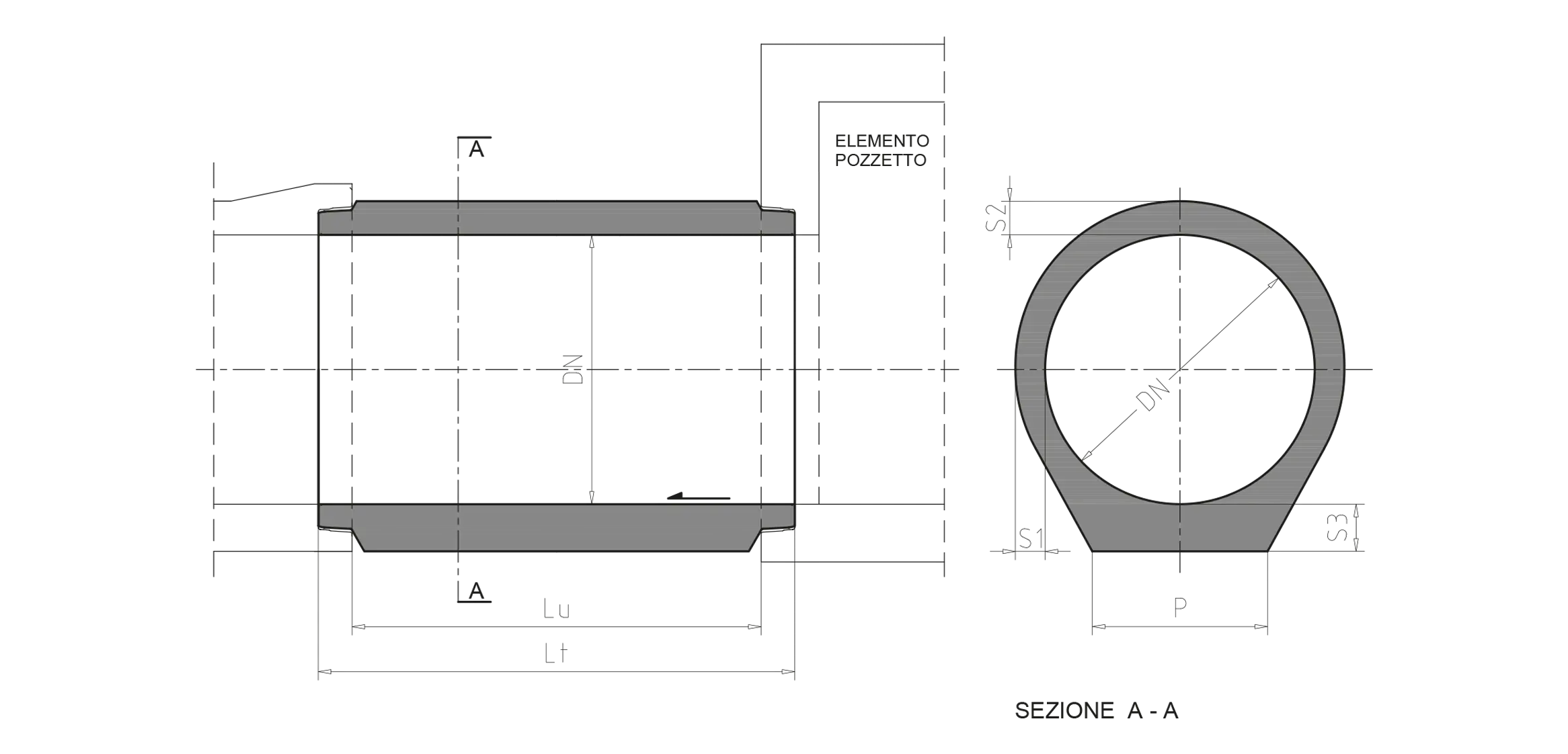
Il tubo in cemento con doppia estremità maschio, per connessione tramite anelli o guarnizioni, garantisce flessibilità e facilità di innesto in ingresso/uscita da elementi pozzetto di raccordo.
2
Il tubo pozzetto è un elemento con sezione interna circolare e predisposizione superiore per l’ispezione, con una dimensione variabile a seconda del diametro della tubazione. Questo manufatto può essere connesso con elementi verticali raggiungi quota.
0
I tubi autoportanti sono progettati per sostenere autonomamente i carichi del terreno, della massicciata stradale e dai carichi da ponte stradale secondo NTC 2018, senza necessità di un rivestimento o contenimento ulteriore esterno.
Tutti manufatti sono marcati CE e prodotti in conformità alla normativa UNI EN 1916:2004 Sistema 4
Diametro da 300mm a 1600mm
MANUFATTI MARCATI CE IN CONFORMITÀ ALLA NORMATIVA UNI EN 1916:2004 SISTEMA 4
| CODICE BB | Classe di resistenza garantita UNI EN 1916:2004 |
||||||||||||
| DN | S1 mm |
S2 mm |
S3 mm |
B mm |
P mm |
Lu mm |
Lt mm |
Peso Kg |
Guar. mm |
Non armato kN*1000/dn |
Armato kN*1000/dn |
Download versione non armata |
Download versione armata |
| 300 | 57 | 77 | 100 | 500 | 240 | 2000 | 2095 | 450 | 16 | 135 | - | /file/Tabelle/tubi_cls/tubo_base_piana_bicchiere/tabella_1/tabella1_non_armata/SchedaTecnicaTuboØ300.pdf | - |
| 400 | 62 | 82 | 100 | 624 | 320 | 2000 | 2095 | 630 | 16 | 135 | 135 | /file/Tabelle/tubi_cls/tubo_base_piana_bicchiere/tabella_1/tabella1_non_armata/SchedaTecnicaTuboØ400.pdf | /file/Tabelle/tubi_cls/tubo_base_piana_bicchiere/tabella_1/tabella1_armata/SchedaTecnicaTuboØ400A.pdf |
| 500 | 70 | 95 | 120 | 760 | 400 | 2000 | 2095 | 875 | 16 | 135 | 135 | /file/Tabelle/tubi_cls/tubo_base_piana_bicchiere/tabella_1/tabella1_non_armata/SchedaTecnicaTuboØ500.pdf | /file/Tabelle/tubi_cls/tubo_base_piana_bicchiere/tabella_1/tabella1_armata/SchedaTecnicaTuboØ500A.pdf |
| 600 | 78 | 103 | 131 | 892 | 450 | 2000 | 2110 | 1145 | 18 | 135 | 135 | /file/Tabelle/tubi_cls/tubo_base_piana_bicchiere/tabella_1/tabella1_non_armata/SchedaTecnicaTuboØ600.pdf | /file/Tabelle/tubi_cls/tubo_base_piana_bicchiere/tabella_1/tabella1_armata/SchedaTecnicaTuboØ600A.pdf |
| 800 | 90 | 105 | 145 | 1108 | 550 | 2000 | 2110 | 1695 | 20 | 90 | 110 | /file/Tabelle/tubi_cls/tubo_base_piana_bicchiere/tabella_1/tabella1_non_armata/SchedaTecnicaTuboØ800.pdf | /file/Tabelle/tubi_cls/tubo_base_piana_bicchiere/tabella_1/tabella1_armata/SchedaTecnicaTuboØ800A.pdf |
| 1000 | 120 | 140 | 175 | 1374 | 650 | 2000 | 2126 | 2660 | 20 | 90 | 110 | /file/Tabelle/tubi_cls/tubo_base_piana_bicchiere/tabella_1/tabella1_non_armata/SchedaTecnicaTuboØ1000.pdf | /file/Tabelle/tubi_cls/tubo_base_piana_bicchiere/tabella_1/tabella1_armata/SchedaTecnicaTuboØ1000A.pdf |
| 1200 | 140 | 160 | 217 | 1670 | 730 | 2000 | 2126 | 3750 | 24 | 90 | 110 | /file/Tabelle/tubi_cls/tubo_base_piana_bicchiere/tabella_1/tabella1_non_armata/SchedaTecnicaTuboØ1200.pdf | /file/Tabelle/tubi_cls/tubo_base_piana_bicchiere/tabella_1/tabella1_armata/SchedaTecnicaTuboØ1200A.pdf |
| 1400 | 160 | 175 | 220 | 1940 | 890 | 2000 | 2130 | 5000 | 24 | - | 100 | - | /file/Tabelle/tubi_cls/tubo_base_piana_bicchiere/tabella_1/tabella1_armata/SchedaTecnicaTuboØ1400A.pdf |
| 1600 | 170 | 185 | 260 | 2140 | 920 | 2000 | 2130 | 5900 | 24 | - | 100 | - | /file/Tabelle/tubi_cls/tubo_base_piana_bicchiere/tabella_1/tabella1_armata/SchedaTecnicaTuboØ1600A_BB.pdf |
Diametro da 1800mm a 2000mm
MANUFATTI NON SOGGETTI A MARCATURA CE
| CODICE BB | Classe di resistenza garantita UNI EN 1916:2004 |
||||||||||||
| DN | S1 mm |
S2 mm |
S3 mm |
B mm |
P mm |
Lu mm |
Lt mm |
Peso Kg |
Guar. mm |
Non armato kN*1000/dn |
Armato kN*1000/dn |
Download versione non armata |
Download versione armata |
| 1800 | 190 | 210 | 300 | 2360 | 980 | 2000 | 2130 | 7700 | 24 | - | - | - | /file/Tabelle/tubi_cls/tubo_base_piana_bicchiere/tabella_2/tabella2_armata/SchedaTecnicaTuboØ1800A_BB.pdf |
| 2000 | 210 | 230 | 330 | 2625 | 1020 | 2000 | 2130 | 9500 | 24 | - | - | - | /file/Tabelle/tubi_cls/tubo_base_piana_bicchiere/tabella_2/tabella2_armata/SchedaTecnicaTuboØ2000A_BB.pdf |
Diametro da 1500mm a 2200mm
MANUFATTI MARCATI CE IN CONFORMITÀ ALLA NORMATIVA UNI EN 1916:2004 SISTEMA 4
| CODICE BI | Classe di resistenza garantita UNI EN 1916:2004 |
||||||||||||
| DN | S1 mm |
S2 mm |
S3 mm |
B mm |
P mm |
Lu mm |
Lt mm |
Peso Kg |
Guar. mm |
Non armato kN*1000/dn |
Armato kN*1000/dn |
Download versione non armata |
Download versione armata |
| 1500 | 170 | 170 | 200 | 1840 | 880 | 2000 | 2130 | 5100 | 24 | - | 100 | - | /file/Tabelle/tubi_autoportanti/SchedaTecnicaTuboØ1500A_BI.pdf |
| 1600 | 180 | 180 | 210 | 1960 | 950 | 2250 | 2380 | 5900 | 24 | - | 100 | - | /file/Tabelle/tubi_autoportanti/SchedaTecnicaTuboØ1600A_BI.pdf |
MANUFATTI NON SOGGETTI A MARCATURA CE
| CODICE BI | Classe di resistenza garantita UNI EN 1916:2004 |
||||||||||||
| DN | S1 mm |
S2 mm |
S3 mm |
B mm |
P mm |
Lu mm |
Lt mm |
Peso Kg |
Guar. mm |
Non armato kN*1000/dn |
Armato kN*1000/dn |
Download versione non armata |
Download versione armata |
| 1800 | 202 | 202 | 230 | 2204 | 1090 | 2250 | 2380 | 7700 | 24 | - | - | - | /file/Tabelle/tubi_autoportanti/SchedaTecnicaTuboØ1800DA.pdf |
| 2000 | 227 | 227 | 225 | 2454 | 1210 | 2250 | 2380 | 9500 | 24 | - | - | - | /file/Tabelle/tubi_autoportanti/SchedaTecnicaTuboØ2000DA.pdf |
| 2200 | 250 | 250 | 280 | 2700 | 1300 | 2000 | 2130 | 10600 | 24 | - | - | - | /file/Tabelle/tubi_autoportanti/SchedaTecnicaTuboØ2200DA.pdf |
Scarica qui la voce di capitolato in formato PDF.
Hai un progetto da realizzare? Il nostro ufficio tecnico è a tua disposizione per offrirti assistenza, consulenza strutturale e preventivi su misura.
1
Il tubo in cemento con doppia estremità maschio, per connessione tramite anelli o guarnizioni, garantisce flessibilità e facilità di innesto in ingresso/uscita da elementi pozzetto di raccordo.
Tutti manufatti sono marcati CE e prodotti in conformità alla normativa UNI EN 1916:2004 Sistema 4
Da 300mm a 1000mm
MANUFATTI MARCATI CE IN CONFORMITÀ ALLA NORMATIVA UNI EN 1916:2004 SISTEMA 4
| CODICE BH |
Classe di resistenza garantita UNI EN 1916:2004 |
|||||||||
| DN | S1 mm | S2 mm | S3 mm | P mm | Lu mm | Lt mm | Peso Kg | Guar. mm | Armato kN*1000/dn | Download |
| 300 | 57 | 77 | 100 | 240 | 1600 | 1790 | 352 | 16 | 135 | /file/Tabelle/tubi_cls/tronchetto_maschio_maschio/SchedaTecnicaTuboØ300+MM.pdf |
| 400 | 62 | 82 | 100 | 320 | 1600 | 1790 | 467 | 16 | 135 | /file/Tabelle/tubi_cls/tronchetto_maschio_maschio/SchedaTecnicaTuboØ400+MM.pdf |
| 500 | 70 | 95 | 120 | 400 | 1600 | 1790 | 700 | 16 | 135 | /file/Tabelle/tubi_cls/tronchetto_maschio_maschio/SchedaTecnicaTuboØ500+MM.pdf |
| 600 | 78 | 103 | 131 | 450 | 1600 | 1820 | 860 | 18 | 135 | /file/Tabelle/tubi_cls/tronchetto_maschio_maschio/SchedaTecnicaTuboØ600+MM.pdf |
| 800 | 90 | 105 | 145 | 550 | 1600 | 1820 | 1170 | 20 | 90 | /file/Tabelle/tubi_cls/tronchetto_maschio_maschio/SchedaTecnicaTuboØ800+MM.pdf |
| 1000 | 120 | 140 | 175 | 650 | 1600 | 1820 | 1820 | 20 | 90 | /file/Tabelle/tubi_cls/tronchetto_maschio_maschio/SchedaTecnicaTuboØ1000+MM.pdf |
Scarica qui la voce di capitolato in formato PDF.
Hai un progetto da realizzare? Il nostro ufficio tecnico è a tua disposizione per offrirti assistenza, consulenza strutturale e preventivi su misura.
2
Il tubo pozzetto è un elemento con sezione interna circolare e predisposizione superiore per l’ispezione, con una dimensione variabile a seconda del diametro della tubazione. Questo manufatto può essere connesso con elementi verticali raggiungi quota.
Tutti manufatti sono marcati CE e prodotti in conformità alla normativa UNI EN 1916:2004 Sistema 4
MANUFATTI MARCATI CE IN CONFORMITÀ ALLA NORMATIVA UNI EN 1916:2004 SISTEMA 4
| CODICE BE | Classe di resistenza garantita UNI EN 1916:2004 |
|||||||||||
| DN | A mm | B mm | S1 mm |
S2 mm |
S3 mm |
P mm |
Lu mm |
Lt mm |
Peso Kg |
Guar. mm |
Armato kN*1000/dn | Download |
| 300 | 800 | 300 | 125 | 100 | 550 | 525 | 2000 | 2095 | 980 | 16 | 135 | /file/Tabelle/tubi_cls/tubopozzetto/SchedaTecnicaTuboØ300+VI.pdf |
| 400 | 800 | 400 | 125 | 100 | 650 | 625 | 2000 | 2095 | 1150 | 16 | 135 | /file/Tabelle/tubi_cls/tubopozzetto/SchedaTecnicaTuboØ400+VI.pdf |
| 500 | 800 | 500 | 125 | 110 | 750 | 735 | 2000 | 2095 | 1595 | 16 | 135 | /file/Tabelle/tubi_cls/tubopozzetto/SchedaTecnicaTuboØ500+VI.pdf |
| 600 | 800 | 600 | 125 | 130 | 850 | 855 | 2000 | 2110 | 1970 | 18 | 135 | /file/Tabelle/tubi_cls/tubopozzetto/SchedaTecnicaTuboØ600+VI.pdf |
| 800 | 800 | 700 | 125 | 145 | 1050 | 1070 | 2000 | 2110 | 2840 | 20 | 90 | /file/Tabelle/tubi_cls/tubopozzetto/SchedaTecnicaTuboØ800+VI.pdf |
| 1000 | 800 | 800 | 125 | 175 | 1240 | 1295 | 2000 | 2125 | 3810 | 20 | 90 | /file/Tabelle/tubi_cls/tubopozzetto/SchedaTecnicaTuboØ1000+VI.pdf |
| 1200 | 800 | 800 | 125 | 217 | 1450 | 1542 | 2000 | 2125 | 5290 | 24 | 90 | /file/Tabelle/tubi_cls/tubopozzetto/SchedaTecnicaTuboØ1200+VI.pdf |
MANUFATTI MARCATI CE IN CONFORMITÀ ALLA NORMATIVA UNI EN 1916:2004 SISTEMA 4
| CODICE BF | Classe di resistenza garantita UNI EN 1916:2004 |
|||||||||||
| DN | A mm | B mm | S1 mm |
S2 mm |
S3 mm |
P mm |
Lu mm |
Lt mm |
Peso Kg |
Guar. mm |
Armato kN*1000/dn | Download |
| 1400 | 650 | 650 | 160 | 175 | 220 | 890 | 2000 | 2130 | 4900 | 24 | 100 | /file/Tabelle/tubi_cls/tubopozzetto/SchedaTecnicaTuboØ1400A+VI.pdf |
| 1500 | 650 | 650 | 170 | 170 | 220 | 880 | 2000 | 2130 | 5000 | 24 | 100 | /file/Tabelle/tubi_cls/tubopozzetto/SchedaTecnicaTuboØ1500A+VI.pdf |
| 1600 | 650 | 650 | 180 | 180 | 210 | 950 | 2250 | 2380 | 5800 | 24 | 100 | /file/Tabelle/tubi_cls/tubopozzetto/SchedaTecnicaTuboØ1600A+VI.pdf |
| MANUFATTI NON SOGGETTI A MARCATURA CE | ||||||||||||
| 1800 | 650 | 650 | 202 | 202 | 230 | 1090 | 2250 | 2380 | 7600 | 24 | - | /file/Tabelle/tubi_cls/tubopozzetto/SchedaTecnicaTuboØ1800DA+VI.pdf |
| 2000 | 650 | 650 | 227 | 227 | 255 | 1210 | 2250 | 2380 | 9400 | 24 | - | /file/Tabelle/tubi_cls/tubopozzetto/SchedaTecnicaTuboØ2000DA+VI.pdf |
| 2200 | 650 | 650 | 250 | 250 | 280 | 1300 | 2250 | 2380 | 10500 | 24 | - | /file/Tabelle/tubi_cls/tubopozzetto/SchedaTecnicaTuboØ2200DA+VI.pdf |
Quando la quota tra il piano di scorrimento e il piano strada non consente l'utilizzo degli elementi di sopralzo, sarà sufficiente il solo fondo pozzetto (cameretta), adeguandone l’altezza alle esigenze del caso.
Per questa soluzione, si richiede il solo elemento di chiusura (soletta piana), idoneo a sopportare carichi da ponte stradale. Esso è realizzato con incastro antisbandamento e con apposito alloggiamento per l’inserimento degli anelli di spessore.L’eventuale raggiungimento della quota esatta per il posizionamento del chiusino in ghisa si ottiene con la sovrapposizione degli anelli a spessore.
Scarica qui la voce di capitolato in formato PDF.
Hai un progetto da realizzare? Il nostro ufficio tecnico è a tua disposizione per offrirti assistenza, consulenza strutturale e preventivi su misura.
Per applicazioni particolarmente esposte ad agenti chimici aggressivi, come reflui industriali o fanghi, LP Prefabbricati propone tubi in calcestruzzo rivestiti con liner in HDPE o materiali anticorrosivi. Questo tipo di rivestimento interno protegge il calcestruzzo da fenomeni di degrado, prolungando significativamente la durata utile dell’opera.
Scopri prodotto
Scegliere i tubi in calcestruzzo prefabbricati LP significa affidarsi a una tecnologia collaudata e all‘esperienza di un’azienda specializzata nella prefabbricazione di elementi strutturali.
Contattaci
Hai un progetto da realizzare? Il nostro ufficio tecnico è a tua disposizione per offrirti assistenza, consulenza strutturale e preventivi su misura.
“PREFABBRICATI LP SRL. IL PROGETTO HA PERMESSO L’ACQUISTO DI DUE NUOVI CARRELLI ELEVATORI. CUP 14508.17092020.172000037” "Misura 3.1.1 a 3 Aiuti al contrasto e contenimento dell'emergenza epidemiologica COVID 19 Fondo Investimenti finalizzato al miglioramento della produttività aziendale grazie al poteziamento del parco macchinari. Il progetto ha permesso l'acquisto di due nuovi carrelli elevatori."