Luogo di cantiere
Milano
Anno
Maggio 2019
Impresa esecutrice
C.E.B.A.T. S.R.L.
Prodotti impiegati
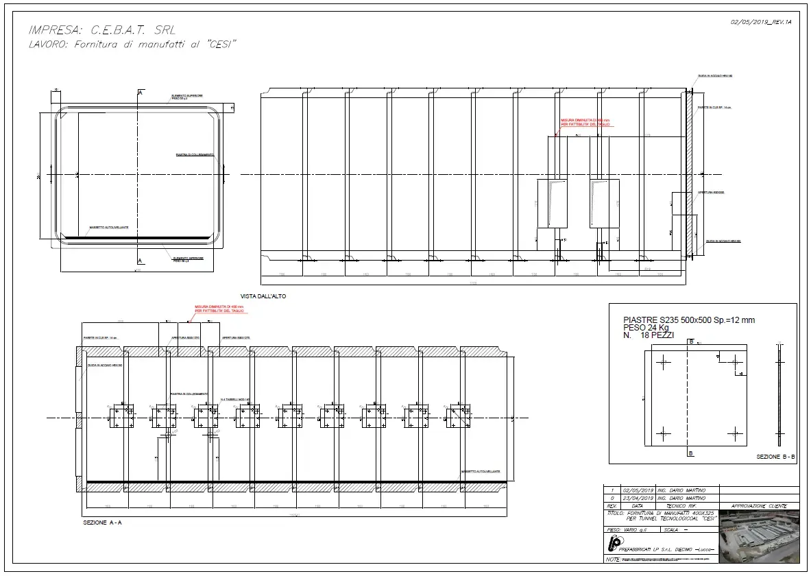
Scatolari dim. 400x325 lu 110
Il tunnel tecnologico realizzato dalla Prefabbricato LP e installato presso il CESI di Milano si è reso necessario per effettuare test di resistenza al fuoco su materiale elettrico predisposto all’interno del cunicolo. Il manufatto è composto da elementi ad “U” sovrapposti di altezza totale interna 325 cm e larghezza 400 cm con spessore parete di 25 cm. La piastra laterale in acciaio S235 garantisce il collegamento tra i vari elementi, inoltre nella parte terminale del tunnel sono state installate due paresti a chiusura fissate con un telaio dedicato in acciaio HEA180.
Questa soluzione ha permesso una veloce installazione dei manufatti con mezzi di modesta capacità di carico.





Prossimo cantiere
“PREFABBRICATI LP SRL. IL PROGETTO HA PERMESSO L’ACQUISTO DI DUE NUOVI CARRELLI ELEVATORI. CUP 14508.17092020.172000037” "Misura 3.1.1 a 3 Aiuti al contrasto e contenimento dell'emergenza epidemiologica COVID 19 Fondo Investimenti finalizzato al miglioramento della produttività aziendale grazie al poteziamento del parco macchinari. Il progetto ha permesso l'acquisto di due nuovi carrelli elevatori."